4 Bedroom Detached Home in Marden Thorn, Tonbridge, Kent, TN12 9LJ   |   Guide Price £2,950 pcm   |   Let

Summary

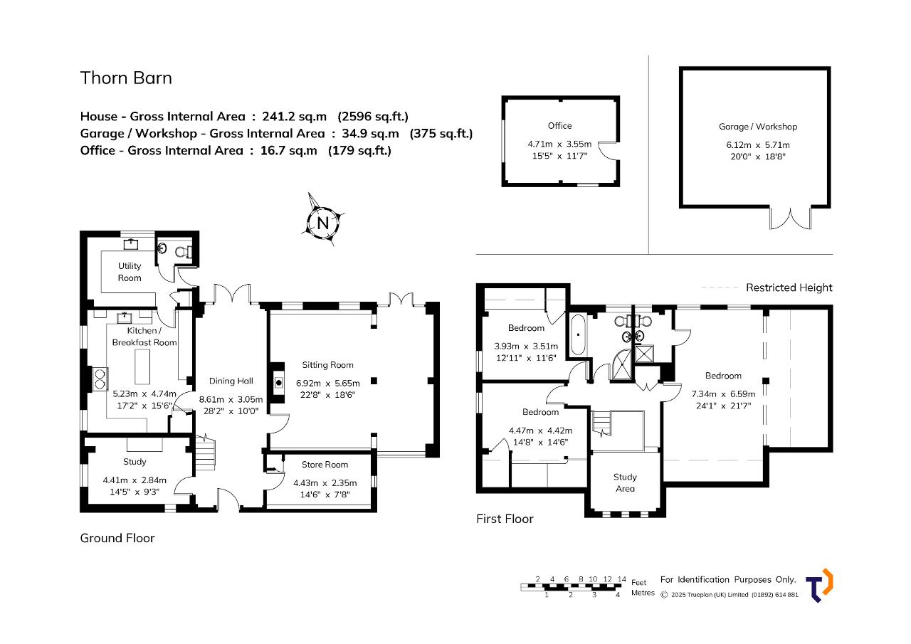
AVAILABLE FOR SHORT TERM LET This beautifully renovated barn conversion offers comfortable and flexible family accommodation with an understated elegance. Finished to a very high specification throughout with attention to detail obvious, the owner has retained the integrity of the character and added convenient modern touches. The ground floor accommodation comprises a spacious beamed drawing room with woodburning stove, a dining hall which can be used as a family room, a study/bedroom 5, a dining room/bedroom 4, a bespoke fully fitted modern kitchen with fitted appliances and an AGA, a fitted utility room and cloakroom. A staircase ascends to the first floor where there is a beamed landing with a snug area perfect for a childrens computer/games area, a master bedroom with ensuite, two further double bedrooms with fitted storage and a family bathroom with separate shower cubicle.
Outside the property is approached over a shingle driveway leading to a detached garage. The garden is mainly lawned with a private paved terrace and an apple orchard to the bottom of the garden. There is also a storage shed with power and light.


  • Refurbished Detached Barn Conversion
  • Entrance/Dining Hall, Drawing Room
  • Fully Fitted Kitchen/Breakfast Room
  • Master Bedroom with Ensuite
  • Two/Four Further Bedrooms, Bathroom
  • Double Open Bay Garage/Barn, ORP
  • Good Sized Garden with Apple Trees
  • Mainline Station at Marden
  • Cranbrook School Catchment Area

Share this property

Administration Fees

Summary

AVAILABLE FOR SHORT TERM LET This beautifully renovated barn conversion offers comfortable and flexible family accommodation with an understated elegance. Finished to a very high specification throughout with attention to detail obvious, the owner has retained the integrity of the character and added convenient modern touches. The ground floor accommodation comprises a spacious beamed drawing room with woodburning stove, a dining hall which can be used as a family room, a study/bedroom 5, a dining room/bedroom 4, a bespoke fully fitted modern kitchen with fitted appliances and an AGA, a fitted utility room and cloakroom. A staircase ascends to the first floor where there is a beamed landing with a snug area perfect for a childrens computer/games area, a master bedroom with ensuite, two further double bedrooms with fitted storage and a family bathroom with separate shower cubicle.
Outside the property is approached over a shingle driveway leading to a detached garage. The garden is mainly lawned with a private paved terrace and an apple orchard to the bottom of the garden. There is also a storage shed with power and light.

Key Features


  • Refurbished Detached Barn Conversion
  • Entrance/Dining Hall, Drawing Room
  • Fully Fitted Kitchen/Breakfast Room
  • Master Bedroom with Ensuite
  • Two/Four Further Bedrooms, Bathroom
  • Double Open Bay Garage/Barn, ORP
  • Good Sized Garden with Apple Trees
  • Mainline Station at Marden
  • Cranbrook School Catchment Area

Share this property

Rightmove Zoopla Primelocation Ombudsman